Log In

Our Brands

Helpful Tools

Search

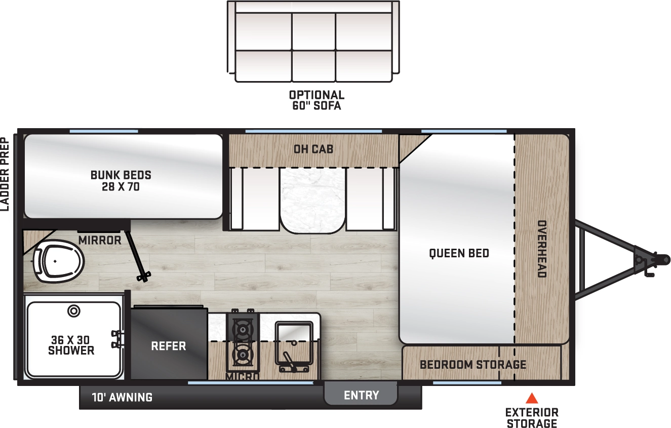
Explore 2026 Aurora Light Travel Trailers 16BHX Floorplan

Small but versatile, featuring bunk beds for families or friends. Lightweight construction ensures easy towing and flexible campsite options while maintaining comfort for outdoor adventures.

Hitch Weight
454 lb.
GVWR
4,454 lb.
UVW
3,109 lb.
CCC
1,345 lb.
Exterior Length
19' 6"
Exterior Height
10' 1"
Exterior Width
90"
Fresh Water
40 gal.
Gray Water
30 gal.
Black Water
30 gal.
Awning Size
10'

16BHX Floorplan Aurora Light Travel Trailers Features & Options

    • 13,500 BTU GE Ducted A/C w/ Heat Pump
    • GE 60K BTU Tankless Water Heater
    • Norco Electromagnetic, Powder Coated Chassis
    • Screwed Cabinet Construction w/ Pocket Bored Lumber Core Stiles
    • Drop Edge Thermofoil Seamless Countertops (No T-Mold)
    • 6'9" Interior Height on Tandem Axles
    • 6'6" Interior Height on Single Axles
    • 5/8" Tongue & Groove Floor
    • 5/8" Plywood Bed Base, Dinette Base, Backers in Walls, & Shower Base
    • Full Length Frame E-Coated Outriggers
    • 2'X3' Floor Joists on Approximately 12" Centers w/ Horizontal Support Studs
    • 5" Floor to Frame Steel Lag Bolts
    • Darco Subfloor Protective Wrap
    • Seamless Roof Membrane w/ Limited Lifetime Warranty
    • Water Heater By-Pass Winterization Kit
    • 12V Demand Water Pump
    • 20,000 BTU Furnace w/ 2-Year Warranty on Single Axles
    • Smooth Aluminum Radius Front
    • Snap Batton Ceiling IPO Nail Batton
    • Front Radius Lights
    • SolidStep Entrance Steps IPO Flip-Down Steps
    • Rear Ladder Prep
    • Electric Awning w/ Multicolor Lights and Remote (16 Colors)
    • Battery Disconnect Switch
    • Magnetic Baggage Door Latches
    • Universal Solar Prep w/ Roof & Charge Controller Connections & Wiring
    • Siphon 360 Roof Vent
    • Upgraded JBL Elite Exterior Speaker
    • Friction Hinge Entry Door
    • Black Tank Flush
    • G20 Privacy Tinted Windows
    • Heavy Duty Standard Tongue Jack
    • Nitrogen Filled Radial Tires
    • Leash Link D-Ring Hookup
    • Two 20 lb. LP Tanks on Aurora Light Tandem Axles (One on Single Axles)
    • Spare Tire (Option on Single Axles)
    • Rear View Camera Prep
    • Diamond Plate Rock Guard
    • Rain Gutters w/ Drip Spouts
    • Flush Mount Baggage Doors w/ Radius Corners
    • All-In-One Control Panel
    • Full GE Kitchen Suite
    • JBL Entertainment Package (N/A 13s)
    • Paper Towel Holder
    • GE 10.7 Cu. Ft. 12V Refrigerator (3.3 on Xs)
    • GE Stainless 3-Burner Gas Range on Tandem Axles
    • GE Stainless 2-Burner Gas Range on Single Axles
    • GE Stainless Microwave
    • Vent Above Shower
    • Easy Access Kickboard Storage Underneath Jiffy Sofa
    • Matte Black Kitchen and Bathroom Faucets
    • 12V USB in Kitchen
    • LED Interior Lighting
    • Bedroom USB Surface Mounts(2)
    • USB Surface Mount Near Bunk Beds
    • Jiffy Sofa w/ Flip-Down Cup Holder/Arm Rest
    • Pedestal Thermofoil Dinette Table (FP Dependent)
    • Hard Valance Window Treatment w/ Decorative Lambrequins
    • Black Nightshades in Living Room
    • Shower/Coat Hooks
    • Bathroom Mirror
    • Mirrored Wardrobes in Master Bedroom
    • Underbed Storage w/ Separation from Outside Front Storage
    • Toothbrush and Soap Holder in Bathroom
    • Peak Performance Solar Package - 30A Controller w/ 200W Solar Panel
    • All-Terrain Tires (Single Axles Only)
    • 7 cu. ft. Gas/Electric Refrigerator (N/A on 13’s)
    • Spare Tire on Single Axles (N/A on 13’s)
    • Jackknife Sofa IPO Booth Dinette (16BHX)
    • Smoke Alarm
    • LP/CO Gas Detector
    • Fire Extinguisher
    • Fire Escape Windows
    • Entrance Door Window
    • Dead-Bolt Lock on Entry Door