Log In

Our Brands

Helpful Tools

Search

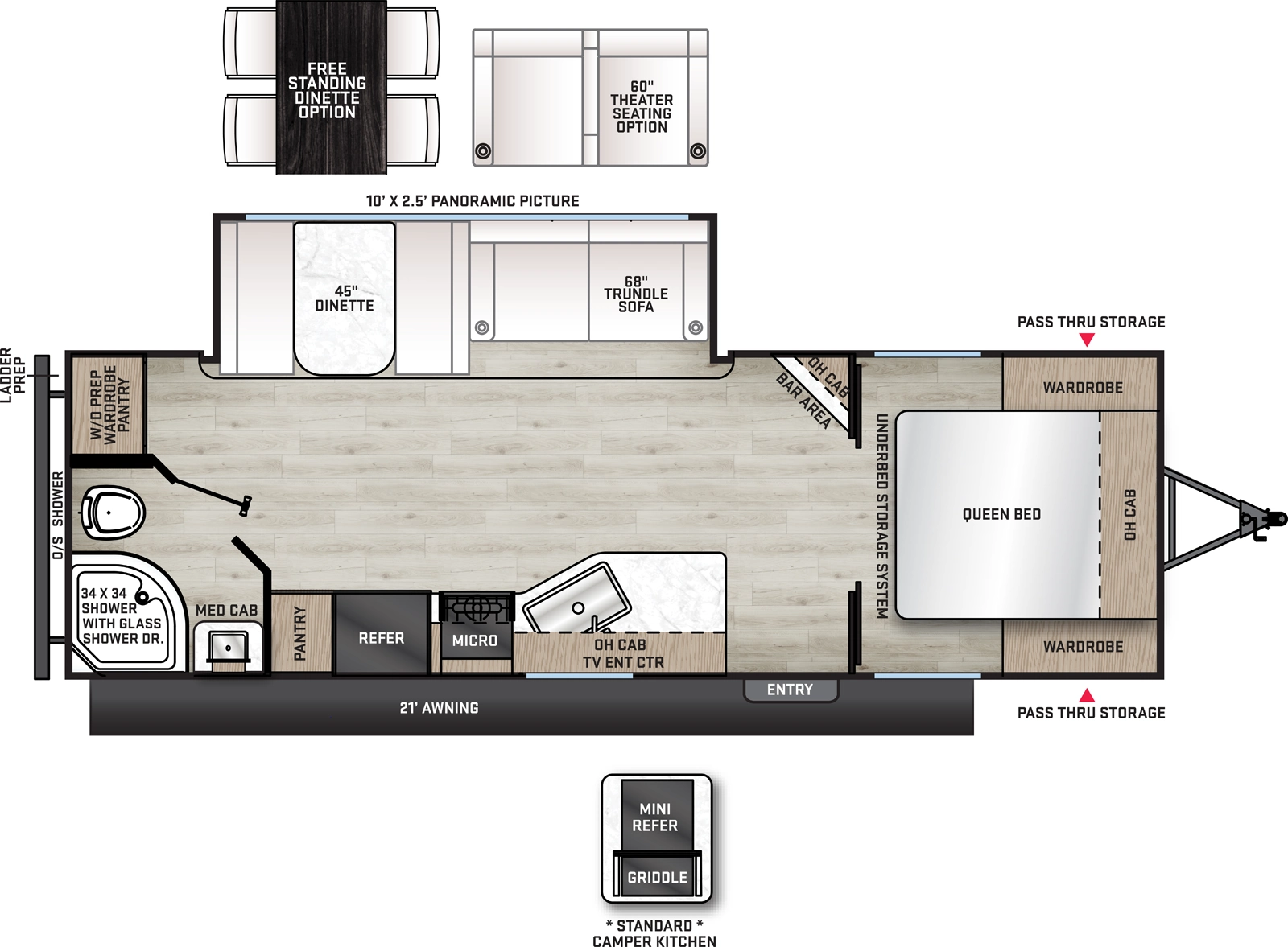
Explore 2026 Aurora Travel Trailers 24RBS Floorplan

A spacious travel trailer that balances comfort with practical mobility. Designed primarily for couples who want extra room to unwind along with upgraded amenities and a relaxed, retreat-like feel. Ideal for lake stays, quiet weekends away, or setting up a comfortable home base at your favorite campground.

Hitch Weight
850 lb.
GVWR
8,468 lb.
UVW
6,468 lb.
CCC
2,000 lb.
Exterior Length
29' 9"
Exterior Height
11' 1"
Exterior Width
96"
Fresh Water
38 gal.
Gray Water
44 gal.
Black Water
29 gal.
Awning Size
21'

24RBS Floorplan Aurora Travel Trailers Features & Options

    • 15,000 BTU GE Ducted A/C w/ Heat Pump
    • Solid Surface Countertops in Kitchen Galley (No T-Mold)
    • GE 60K BTU Tankless Water Heater
    • Norco Electromagnetic, Powder Coated Chassis
    • 6'9" Interior Height on Tandem Axles
    • Screwed Cabinet Construction w/ Pocket Bored Lumber Core Stiles
    • 5/8" Tongue & Groove Flooring
    • 5/8" Plywood Bed Base, Dinette Base, Backers in Walls, & Shower Base
    • Full Length Frame E-Coated Outriggers
    • 2'X3' Floor Joists on Approximately 12" Centers w/ Horizontal Support Studs
    • 5" Floor To Frame Steel Lag Bolts
    • Darco Subfloor Protective Wrap
    • Seamless Roof Membrane w/ Limited Lifetime Warranty
    • Water Heater By-Pass Winterization Kit
    • 12V Demand Water Pump
    • 35,000 BTU Furnace w/ 2 Year Warranty
    • Smooth Aluminum Radius Front
    • 10 Ft. Slideout Window
    • Front Radius Lights
    • Safe-T Rail Door Assist on Main Entry Door
    • Rear Ladder Prep
    • Enclosed, Fully Sealed Underbelly
    • Friction Hinge Entry Door
    • SolidStep Entrance Steps IPO Flip-Down Steps
    • Universal Solar Prep w/ Roof & Charge Controller Connections & Wiring
    • Siphon 360 Roof Vent
    • Power Tongue Jack
    • Magnetic Baggage Door Latches
    • Upgraded JBL Elite Exterior Speakers
    • Electric Awning w/ Multicolor Lights and Remote (16 Colors)
    • Battery Disconnect
    • Outside Hot/Cold Shower w/ Hands Free Holder
    • Black Tank Flush
    • Aluminum Sport Wheels
    • Nitrogen Filled Radial Tires
    • Polished Aluminum Fender Skirts
    • Leash Link D-Ring Hookup
    • Exterior 110V GFCI Protected Receptacle
    • Exterior RG-6 Coax Cabling and Satellite Prep
    • G20 Privacy Tinted Windows
    • Two 20 lb. LP Tanks w/ ABS Bottle Cover
    • Spare Tire
    • Rear View Camera Prep
    • Diamond Plate Rock Guard
    • Rain Gutters w/ Drip Spouts
    • LP Quick Connect w/ Camp Kitchen
    • Blackstone Griddle in Camp Kitchens
    • Mini Camp Kitchen (24RBS, 28BHS, 26FKDS, 29QBS, & 31KDS)
    • Bottle Opener (Exterior Camp Kitchens)
    • Flush Mount Baggage Doors w/Radius Corners
    • Full GE Kitchen Suite
    • Solid Surface Countertops in Kitchen Galley (No T-Mold)
    • 12V 2-Way Maxxair Vent Fan in Living Room w/ Wall Remote
    • 39" or Larger Smart TV (FP Dependent)
    • Porcelain Pedestal Toilet
    • Trundle Sofa IPO Jackknife Sofa (Per Floorplan)
    • Stainless Steel Drying Rack
    • All-In-One Control Panel w/ Dimmer Switch
    • Kitchen Sink Glass Rinser
    • Carpetless Unit w/ Lino in Slide-Out
    • JBL Entertainment Package
    • Paper Towel Holder
    • GE 10.7 Cu. Ft. 12V Refrigerator
    • GE Stainless 3 Burner Gas Range
    • GE Stainless Microwave
    • 12V USB in Kitchen
    • Pull Down Kitchen Faucet
    • ABS Tub/Shower Surround
    • Skylight Above Tub/Shower
    • Easy Access Booth Dinette Storage Doors
    • LED Interior Lighting
    • Bedroom USB Surface Mounts (2)
    • Decorative Fitted Bedsheet
    • Deep Undermount Farm Style Sink
    • Silverware Kitchen Drawer
    • Shower/Coat Hooks
    • Pedestal Thermofoil Dinette Table
    • Black Night Shades
    • Hard Valance Window Treatment w/ Decorative Lambrequins
    • 12V Power Vent Fan in Bathroom
    • Medicine Cabinet w/ Mirror
    • Bathroom Mirror on Aurora Light
    • Solid Master Bedroom Door
    • Mirrored Wardrobes in Master Bedroom (N/A Bed Slide Models)
    • Underbed Storage w/ Separation from Outside Front Storage
    • Washer/Dryer Prep (24RBS, 31KDS, 32BDS, 34BHTS)
    • Toothbrush and Soap Holder in Bathroom
    • Power Theater Seating IPO Trundle Sofa (Standard in 32RLTS)
    • Peak Performance Solar Package - 30A Controller w/ 200W Solar Panel
    • 30" Built in Fireplace
    • Free-Standing Table w/ 4 Chairs (N/A U-Dinette Floorplans)
    • 7 cu. ft. Gas/Electric Refrigerator
    • Ramp Door Patio Package (Toy Haulers)
    • Two (2) Pushback Recliners (26ATH)
    • Fuel Station w/ 30 Gallon Fuel Tank (29ATH)
    • Smoke Alarm
    • LP/CO Gas Detector
    • Fire Extinguisher
    • Fire Escape Windows
    • Entrance Door Window
    • Dead-Bolt Lock on Entry Door